Renet utilizează fişiere de tip cookie pentru a personaliza și îmbunătăți experiența ta pe Website-ul nostru. Înainte de a continua navigarea pe Website-ul nostru te rugăm să aloci timpul necesar pentru a citi și înțelege conținutul Politicii de Cookie. Prin continuarea navigării pe Website-ul nostru confirmi acceptarea utilizării fişierelor de tip cookie conform Politicii de Cookie.

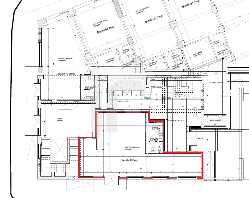
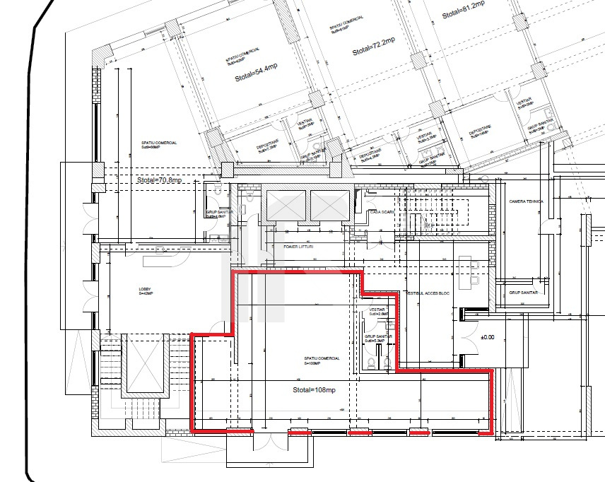
Spatii comerciale | 182-463 mp | Subsol | Barrio Residence Unirii

Bucuresti, Unirii

4.000€ + TVA
ID: PB20193 16
Reprezentare exclusiva de inchiriat
  • ID:PB20193
  • Nr. camere:1
  • S. utila:182.00 mp
  • S. vitrina:0.00 m
  • Front stradal:0.00 m
  • Comp.:Open space
  • Nr. bai:1
  • Nr. parcari:3
  • An constructie:2026
  • Tip imobil:Bloc
  • Regim inaltime:P+11
Utilitati
  • Utilitati generale: Curent, Apa, Canalizare, Curent trifazic, CATV, Acces internet, Fibra optica
  • Climatizare: Ventiloconvectoare
Finisaje
  • Pereti: Vopsea lavabila
  • Podele: Gresie
  • Ferestre: Aluminiu
Dotari
  • Imobil: Lift, Spatii agrement

Spatiile comerciale se afla in proiectul premium Barrio Residence Unirii din strada Voinicului, nr. 1-11, la doar 150 m de Bd. Unirii.

Dispun de spatii vitrate mari, finisaje premium si un vad comercial si pietonal bun. 

Disponibilitati:

Parter: intre 72 mp si 312 mp (dispun de terasa proprie), preturi intre 35-40 euro/mp + TVA in functie de pozitie.
Mezanin: open space de 887 mp  cu posibilitate de compartimentare, pret: 25 euro/mp + TVA.
Subsol: intre 182 mp si 463 mp. (dispun de putere mare, pretabile si pentru RMN), pret: 22 euro/mp + TVA.

Posibilitate de montare hota. Parcarile sunt disponibile separat la un cost de 100 euro + TVA.

Spatiile se predau finisate complet. Imobilul are termen de finalizare in mai 2026.

Se percep 2 luni de garantie.

Oferta importata de la agentie colaboratoare

Sorin Raducu

Printeaza
openai-domain-verification=dv-Ib9fbpCkPoICU8eN2X1wVJvw