Renet utilizează fişiere de tip cookie pentru a personaliza și îmbunătăți experiența ta pe Website-ul nostru. Înainte de a continua navigarea pe Website-ul nostru te rugăm să aloci timpul necesar pentru a citi și înțelege conținutul Politicii de Cookie. Prin continuarea navigării pe Website-ul nostru confirmi acceptarea utilizării fişierelor de tip cookie conform Politicii de Cookie.

Casa individuala | 4 camere | Lot 300mp | Orientului 11 | Tunari | TVA inclus

Tunari

180.000€
ID: PB19818 10
Reprezentare exclusiva de vanzare
  • ID:PB19818
  • Nr. camere:4
  • Nr. dormitoare:3
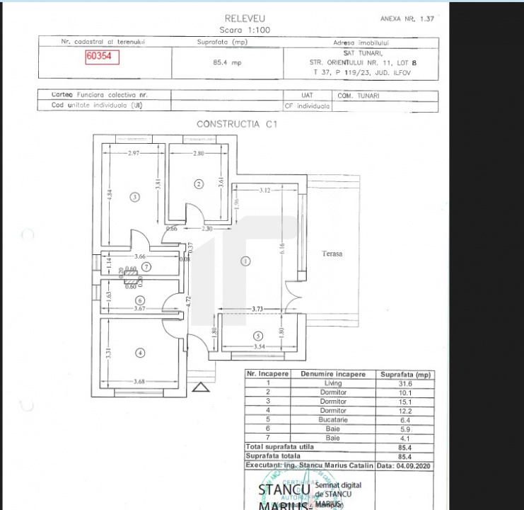
  • S. utila:85.40 mp
  • S. utila totala:100.40 mp
  • S. construita:108.00 mp
  • S. teren:300.00 mp
  • Nr. bucatarii:1
  • Nr. bai:2
  • Front stradal:16.00 m
  • Nr. fronturi:1
  • An constructie:2020
  • Structura rezistenta:Caramida
  • Regim inaltime:P
  • Clasa energetica:A

Casa individuala se afla in complexul de 21 de case denumit Primaverii Park, pe strada Orientului, nr. 11 din Tunari.

Dispune de 4 camere compartimentate in 85.4mp utili la care se adauga o terasa inchisa in sticla. Incalzirea se realizeaza prin pardoseala cu ajutorul unei centrale termice prin condensare.

Complexul dispune de fosa septica de inalta performanta si put propriu, ambele autorizate de Apele Române, ceea ce garantează o infrastructura sigura si complet functionala.

In aceasta oferta nu sunt incluse mobila si electrocasnicele, dar se pot achizitiona separat. Nu se aplica TVA.

Pentru orice detalii ma puteti contacta!

Oferta importata de la agentie colaboratoare

openai-domain-verification=dv-Ib9fbpCkPoICU8eN2X1wVJvw