
































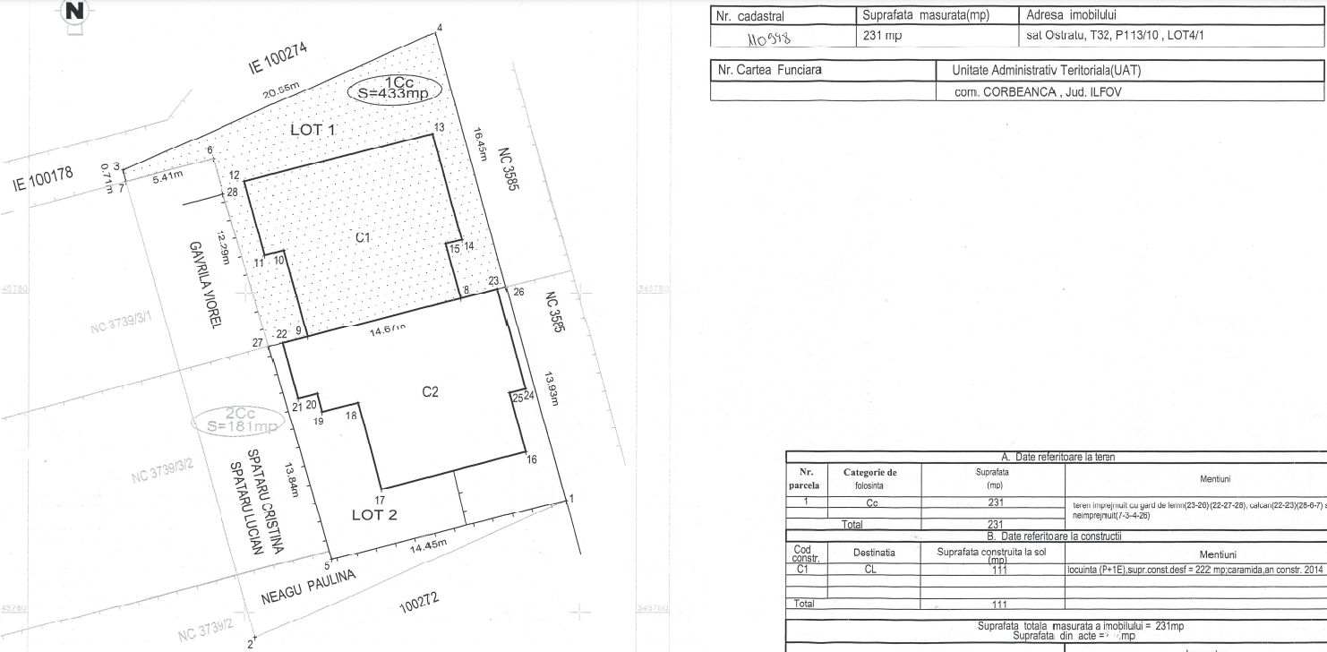
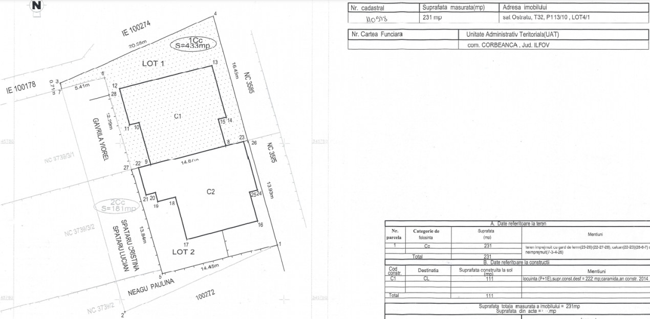
Duplex situat intr-un cartier linistit, in apropiere de lac si Biserica Sfanta Treime, pe strada Hipodromului nr.35.
Curtea individuala: spatiu pavat pentru parcare, gradina, terasa acoperita si magazie pentru depozitare, fiind inconjurata de un gard, ce ofera intimitate.
Casa are centrala termica proprie, electricitate, hidrofor; canalizare.
Bucătărie cu electrocasnicele încorporate: aragaz, cuptor, cuptor cu microunde, hota, frigider si Centrala Termica-toate Bosch!
Livingul mobilat, are vedere mixtă, Grupul sanitar cu masina de spalat rufe.
La Etaj: Hol cu acces către un dormitor luminos cu balcon, cu vedere spre curte interioara.
A doua Camera are birou, canapea, dulap. Baie are cada si fereastra. Scara interioară către Mansarda.
Mansarda are o suprafata de 40 mp - Spațiu perfect pentru depozitare.
Duplexul este construit pe o structură solidă din beton armat, cu zidărie din cărămidă și acoperiș din tablă Lindab.