Renet utilizează fişiere de tip cookie pentru a personaliza și îmbunătăți experiența ta pe Website-ul nostru. Înainte de a continua navigarea pe Website-ul nostru te rugăm să aloci timpul necesar pentru a citi și înțelege conținutul Politicii de Cookie. Prin continuarea navigării pe Website-ul nostru confirmi acceptarea utilizării fişierelor de tip cookie conform Politicii de Cookie.

Apartament in Vila, 5 camere, Alexandru Philippide 4, de renovat

Bucuresti, Gradina Icoanei

440.000€
ID: ZZ20321 32
Reprezentare exclusiva de vanzare
  • ID:ZZ20321
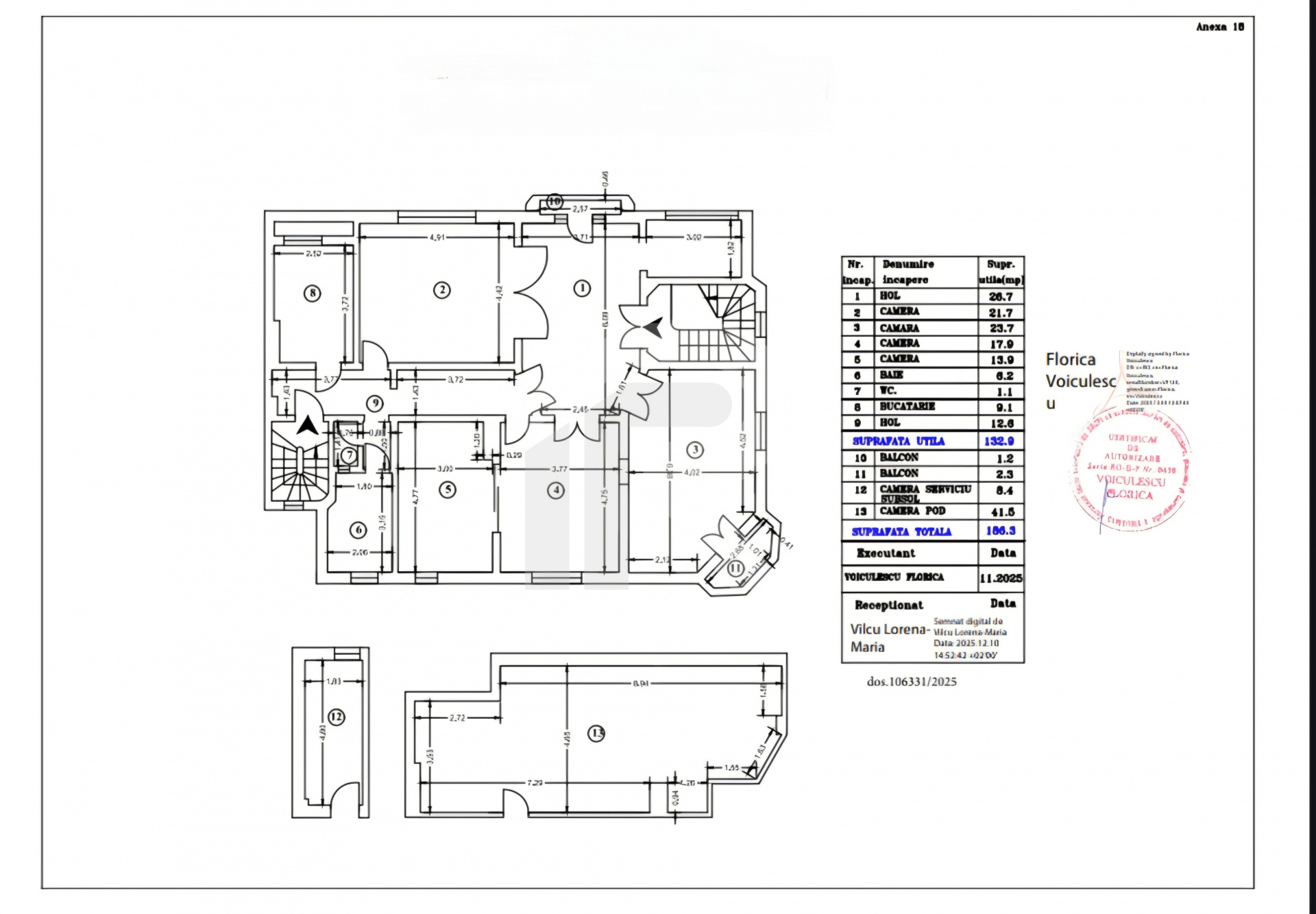
  • Nr. camere:5
  • S. utila:182.80 mp
  • S. utila totala:186.30 mp
  • S. construita:251.00 mp
  • Comp.:Circular
  • Confort:Lux
  • Etaj:Etaj 2
  • Regim inaltime:D+P+2
  • S. gradina:403.00 mp
  • Nr. bucatarii:1
  • Nr. bai:2
  • Nr. balcoane:2
  • S balcoane:3.50 mp
  • An constructie:1938
  • Structura:Caramida
  • Tip imobil:Casa/Vila
  • Orientare:Sud-Vest
  • Clasa energetica:C
Utilitati
  • Utilitati generale: Curent, Apa, Canalizare, CATV, Telefon, Acces internet, Fibra optica
  • Sistem incalzire: Centrala proprie, Calorifere
  • Climatizare: Aer conditionat
Finisaje
  • Pereti: Vopsea lavabila, Faianta
  • Podele: Parchet, Gresie
  • Stare: Necesita renovare
  • Ferestre: Lemn
  • Usa intrare: Lemn
  • Usa interior: Lemn, Sticla
Dotari
  • Spatii utile: Wc serviciu, Boxa la subsol
  • Bucatarie: Mobilata, Utilata
  • Contorizare: Apometre, Contor gaz
  • Mobilat: Complet
  • Imobil: Videointerfon, Acoperis, Curte comuna, Gradina


Apartament spatios, situat la etajul 2 al unei vile deosebite, situata intro zona de mare interes a Bucurestiului, Dacia-Eminescu (Strada Alexandru Philippide, nr.4), extraordinar de bine compartimentat, asteapta sa fie renovat si amenajat conform designului si utilitatii necesare, viitorilor proprietari.

Apartamentul este compus din:

- 5 camere (3 dormitoare)
- Hol
- Bucatarie
- Baie, grup sanitar
- Vestibul
- Culoar
- 2 balcoane
- terasa acoperita

Dispunerea este intro compartimentare circulara, cu spatii foarte largi si aerisite.

Apartamentul are o suprafata utila de 132,9 mpu, 2 balcoane 1, 2 si 2,3 mpu, la care se adauga, o boxa (camera de serviciu la subsol),  de 8,4 mp si o camera in pod, in suprafata de 41,5 mpu (suprafata totala 186.3 mpu) .

Tot in proprietate se afla o suprafata de 48, 47m teren, situat sub constructie, din totalul terenului pe care s a edificat imobilul (403mp, 208,6mp fiind teren liber), precum si cota parte din dependintele si spatiile comune.

Apartamentul se vinde nerenovat, asteptandu si noii proprietari sa amenajeze,utilizand perfect spatiile ample si tavanele inalte ale proprietatii.

Extraodinar de elegant si cu stil, acest apartament se afla intro vila superba, datand din perioada interbelica, extrem de valoroasa, monument istoric.


Pentru mai multe detalii si stabilirea unei vizionari, nu ezitati sa ma contactati.
Multumesc,

Oferta importata de la agentie colaboratoare

Sorin Raducu

Printeaza
openai-domain-verification=dv-Ib9fbpCkPoICU8eN2X1wVJvw